* Рама за раздатка – подготовка
Публикувано на 30 януари 2010 в раздел Лада Нива.
Днес официално започна работата по правене на рама за раздатъчната кутия на моята Лада Нива. Използваме идеята от един руски форум, но я правим сериозно модифицирана. Оригиналът е направен от правоъгълен профил, а ние ще я направим от винкелно желязо. Целта е да не се намалява клиренса заради рамата. И така... работата започва с рязане:
След което мерене и разкрояване (винаги в този ред, да знаете!):
По идея на баща ми няма да режем напречните греди, а само ще ги изкривим. За целта се отрязват ъгълчета в едната страна на винкела:
В дясно на горната снимка едната страничка е резната, за да може после като се напасне ъгъла точно да се изреже другата страна точно по вертикала. После на парчетата, на които ще легнат тампоните на раздатката се пробиват необходимите дупки:
Повторно и потретно се мери точното положение на което ще застанат гредите:
Следва... как се казваше... "парваме" няколко точки със заваръчния апарат, за да се фиксира всичко така както трябва да седи:
След като леко се поукрепи - за всеки случай отново се премерват всички възлови дължини:
Накрая с голям чук се закривяват краищата, които трябва да отидат към носещите греди на автомобила:
Спряхме работата дотук, защото вече е нужен канал за колата. Трябва да се отрежат краищата на двата дълги винкела и да се направи планка. След това заварките трябва да се направят от край до край плътно и здраво. На късите греди със сигурност ще трябва да се изрежат улейчета, понеже раздатката има ос, която ще пречи. После ще се боядисва. Накрая остава монтаж. Възможно е да се наложи леко прекраяване на тръбата на ауспуха, защото най-вероятно ще се засича. Когато му дойде времето ще пиша пак...
Големи благодарности на Боян Георгиев от фирма за заваръчна техника Струна който ми оказа безценна помощ с инструменти и идеи. С моите две леви ръце просто нямаше да се получи :)
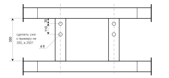
Ето и схемите, по които се водихме, но както казах по-рано с леки разлики поради разликата в използвания материал:
Идеята е благодарение на форума на offroad-bulgaria.com.










Добави коментар